建売情報
新着物件
建物

FB TOWN 須坂新町 A号棟

高気密高断熱!!耐震等級3+制振ダンパー搭載!

物件写真

情報提供日
2026/02/09
次回更新日
情報提供より8日以内に更新
外観パース 駐車3台可能なレイアウト。 ※外構は別途相談

外観パース 駐車3台可能なレイアウト。 ※外構は別途相談

外観パース 飽きの来ないシャープなデザインと街並みに溶け込グレーの外観がいつも家族をお迎えします。

外観パース 飽きの来ないシャープなデザインと街並みに溶け込グレーの外観がいつも家族をお迎えします。

リビングダイニング

リビングダイニング

リビングダイニング

リビングダイニング

リビングダイニング

リビングダイニング

リビングダイニング

リビングダイニング

区画図

区画図

外観パース 駐車3台可能なレイアウト。 ※外構は別途相談

外観パース 駐車3台可能なレイアウト。 ※外構は別途相談

外観パース 飽きの来ないシャープなデザインと街並みに溶け込グレーの外観がいつも家族をお迎えします。

外観パース 飽きの来ないシャープなデザインと街並みに溶け込グレーの外観がいつも家族をお迎えします。

リビングダイニング

リビングダイニング

リビングダイニング

リビングダイニング

リビングダイニング

リビングダイニング

リビングダイニング

リビングダイニング

区画図

区画図

電話で予約する

0120-2323-58

営業時間:9:00~18:00/定休日:火・水曜日

WEBから予約する

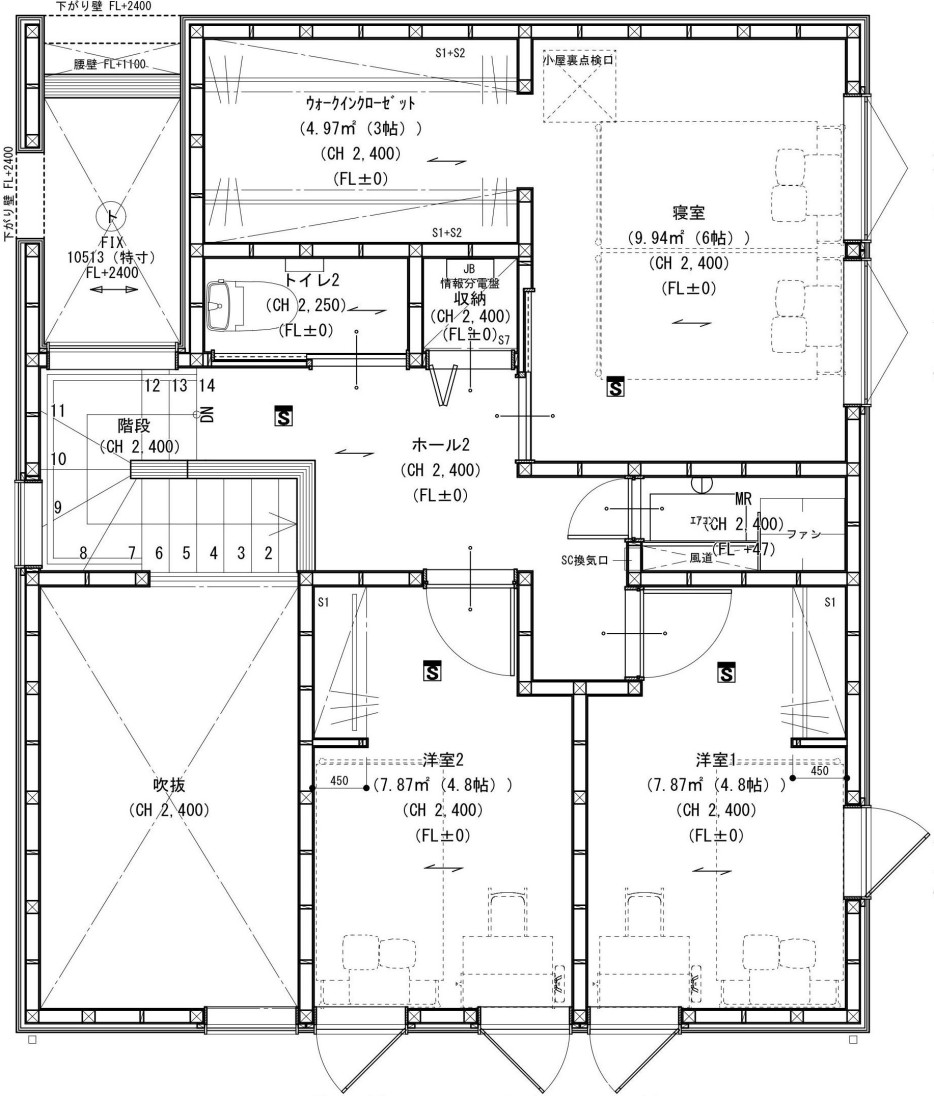
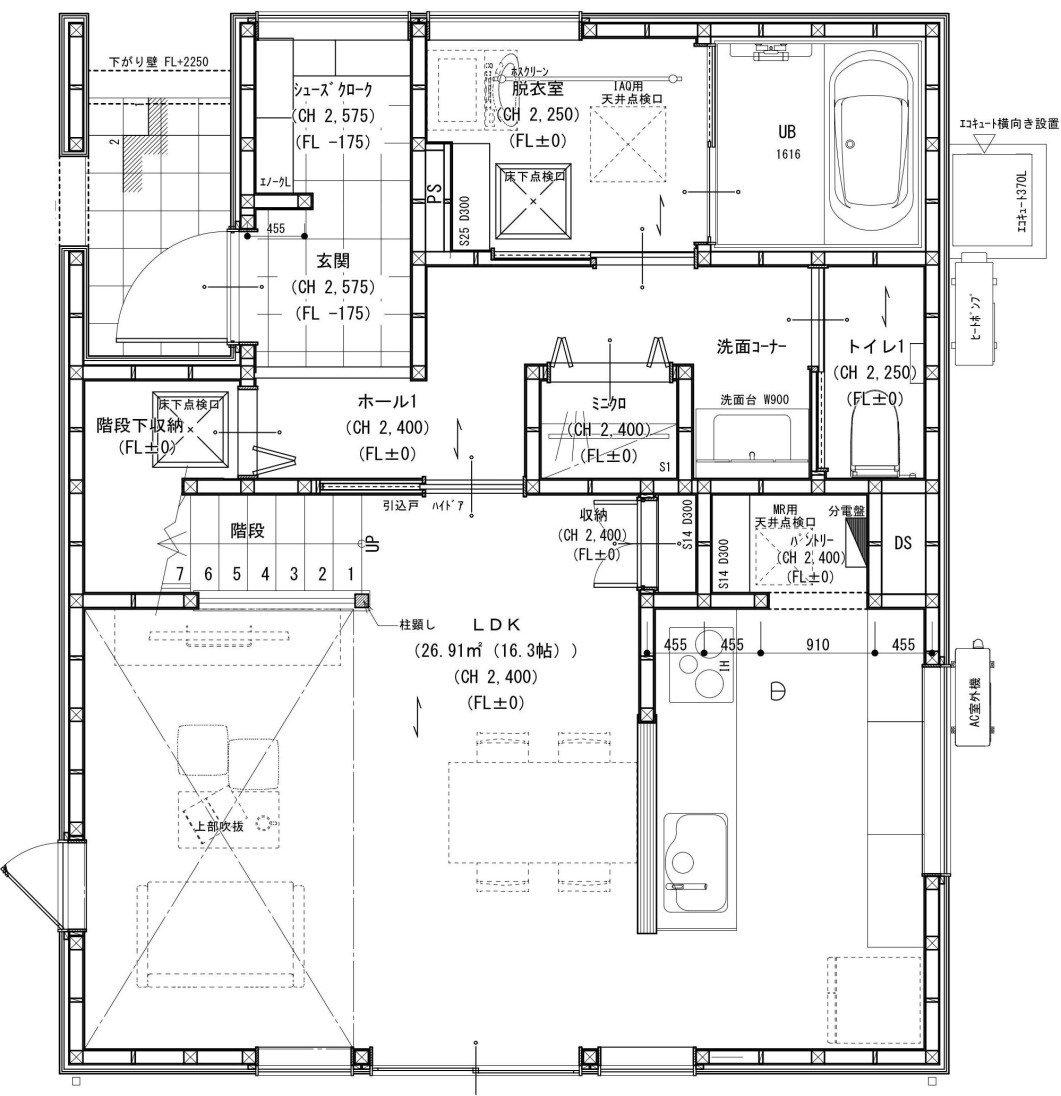
物件の間取り図

1階平面図
3LDK (LDK16.3帖、主寝室6帖、洋室4.8帖、洋室4.8帖) 2階平面図

周辺情報

ツルヤ須坂西店まで約1200m 徒歩15分

ツルヤ須坂西店まで約1200m 徒歩15分

ドラッグストア マツモトキヨシ芝宮前店 約200m 徒歩3分

ドラッグストア マツモトキヨシ芝宮前店 約200m 徒歩3分

須坂市役所 約1100m 徒歩14分

須坂市役所 約1100m 徒歩14分

西友須坂店 約1100m 徒歩14分

西友須坂店 約1100m 徒歩14分

八十二銀行須坂支店 約230m 徒歩3分

八十二銀行須坂支店 約230m 徒歩3分

長野信用金庫 太子町支店 約120m 徒歩2分

長野信用金庫 太子町支店 約120m 徒歩2分

長野県立信州医療センター約600m 徒歩8分

長野県立信州医療センター約600m 徒歩8分

市立須坂図書館 約500m 徒歩7分

市立須坂図書館 約500m 徒歩7分

MAP 須坂市大字須坂字新町608番3

高性能設備

  • 熱交換型換気扇

    熱交換型換気扇

  • エコキュート

    エコキュート

  • トリプルサッシ

    トリプルサッシ

  • タッチキーリモコン

    タッチキーリモコン

  • 制振ダンパー(Evolts)

    制振ダンパー(Evolts)

  • 太陽光パネル6.6Kw搭載

    太陽光パネル6.6Kw搭載

  • 省エネ性能ラベル ネット・ゼロ・エネルギー基準クリア 断熱等級6

    省エネ性能ラベル ネット・ゼロ・エネルギー基準クリア 断熱等級6

  • コロナエコキュートはソーラーモードアプリ連動タイプ!クラウドから天気予報データを自動入手し最適湯沸かし。電気代を大幅削減します。

    コロナエコキュートはソーラーモードアプリ連動タイプ!クラウドから天気予報データを自動入手し最適湯沸かし。電気代を大幅削減します。

電話で予約する

0120-2323-58

営業時間:9:00~18:00/定休日:火・水曜日

WEBから予約する

物件概要

販売スケジュール
イベント情報
所在地
須坂市大字須坂字新町608番3
交通
長野電鉄長野線 須坂駅
販売戸数
1戸
総戸数
1戸
価格
4,180万円
最多価格帯
私道負担・道路
接道 北側 公道 幅員3.3m 接面9.57m
諸費用
外構費用は含まれません
間取り
3LDK
建物面積
96.05㎡(29.05坪)
土地面積
222.79㎡(67.39坪)
建ぺい率・容積率
60%:200%
完成時期(築年月)
2026年3月
入居時期
相談
土地の管理形態
所有権
構造・工法
木造
施工
ホクシンハウス株式会社(建築確認番号:第25NJK-10-00552号)
リフォーム
用途地域
一種住居地域
地目
宅地
その他制限事項
北側道路「栄町八木沢線」は7時~21時の時間帯、西側からの一方通行になります。
その他概要・特記事項
南側一部が近隣商業地域(建ぺい率 80%・容積率200%)

電話で予約する

0120-2323-58

営業時間:9:00~18:00/定休日:火・水曜日

WEBから予約する

Information

会社概要

<売主>
長野県知事(4)第005173号
ホクシンハウス(株)
〒381-0031 長野市西尾張部322-1

お問い合わせ先

ホクシンハウス(株)共通ショールーム
0120-2323-58 免許番号:長野県知事(4)第005173号
取引態様:<売主>
営業時間:9:00~18:00 / 定休日:火・水曜日

物件一覧へ戻る
この物件の見学予約をする